Descrizione
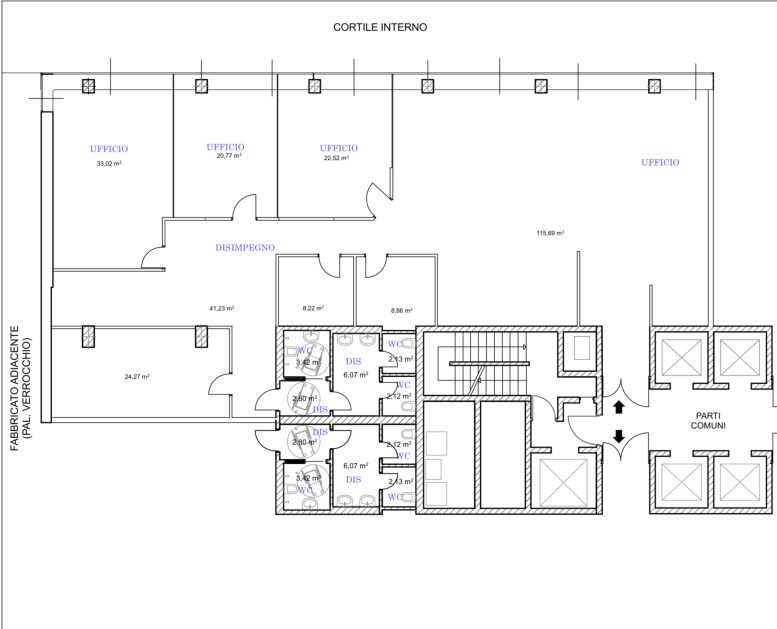
Nel prestigioso complesso del Centro Direzionale di Milano 2, proponiamo in esclusiva luminoso e funzionale ufficio, ideale per aziende che cercano un contesto esclusivo che coniughi professionalità, comfort e prestigio: la soluzione ideale per chi desidera lavorare in un ambiente moderno e sicuro. Milano 2 è uno dei progetti urbanistici più innovativi d’Italia, pensato per offrire un perfetto equilibrio tra spazi lavorativi e qualità della vita. Immerso in un ambiente green, funzionale e dinamico il Centro Direzionale è caratterizzato da 7 edifici distinti, ampie aree pedonali e ciclabili che lo rendono un luogo unico, a pochi minuti da Milano. L’area è facilmente raggiungibile grazie ai collegamenti con la tangenziale est, e ai servizi di trasporto pubblico. La prossimità con l’aeroporto di Linate a 10 minuti, rende l’ubicazione ideale per chi si sposta frequentemente in aereo. In questa magnifica location si trovano tutti i principali servizi utili alla quotidianità, tra cui ristoranti, una palestra, banche e vari parcheggi videosorvegliati. In questo contesto unico proponiamo in locazione, al sesto piano di Palazzo Canova, servito da quattro ascensori, un montacarichi per i traslochi e servizio di guardiania tutto il giorno, ufficio di 330 mq. L’immobile di 13 vani e mezzo, internamente modulabile, è attualmente composto da ampia aree open space, zona reception, sala riunioni, ulteriori cinque locali, locale server e doppi servizi con annesso bagno disabili. Il canone richiesto è di € 47.875,00 oltra ad oneri accessori annui di € 22.000,00.
Caratteristiche Immobile
- Stato: Ristrutturato
- Classe immobile: Signorile
- Tipo proprietà:
- Classe Energetica: F
- Locali: >5
- Bagni: 3
- Tipo impianto riscaldamento: Ad aria
- Piano: 6
- Fibra Ottica: Si

